パークナード新梅田アーバンパレス 2階
☆オーナーチェンジ・表面利回り:3.72%☆2020年竣工!家族におすすめな3LDK。設備も充実しています。時間帯やシーズンを選ばずいつでも好きなときに洗濯できる、浴室乾燥機付きの物件です。大阪環状線福島周辺の住まいを一度見学するなら、0648020077かinfo@oceans-p.co.jpでご予約ください。お待ちしております。
ローンシミュレーションこの物件を購入した場合の、月々の支払い価格の一例です。借り入れを保証するものではございません。
- 返済期間
-
- 金利
-
- ボーナス時の増額(1回分)
-
- 借入金額:
-
- 頭金:
-

- 毎月の返済額:
(※元利均等方式 金利5.00%まで ※返済年数5~50年まで入力できます)
(※ボーナスは年2回で計算しています。1000万円まで入力できます)
(※物件購入時、その他諸費用が発生する場合がございます)
想定賃料・利回り・PER
- 想定賃料(1か月分)
-
- 利回り
-

- PER(収益力)
担当者のコメント 鎌倉仁興

- ☆オーナーチェンジ・表面利回り:3.72%☆2020年竣工!大淀警察署大淀南交番が284mのところにあります。モニターから顔が見えるTVインターホン付きです。湿気を残さずしっかりと衣類を乾燥させられるので生乾き臭も軽減される、浴室乾燥機付きの物件です。ゆったりとしたくつろぎの空間のある、3LDKの物件です。大阪環状線福島周辺で住まいをお求めの方は、暮らしの相談室 中崎町店までお問い合わせ下さい。0648020077からいつでもお電話下さい。
ポイント・特徴
☆オーナーチェンジ 表面利回り:3.72% 防犯カメラ 全居室フローリング LDK12帖以上 追焚機能浴室 駅徒歩10分以内
物件概要
【中古マンション】 物件番号:99883499 情報更新日:2026年05月11日 次回更新予定日:2026年05月25日| 所在地 | 大阪府大阪市北区大淀中2丁目4-24 | ||
|---|---|---|---|
| 交通 | |||
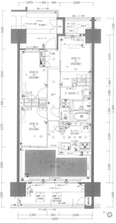
| 間取り/詳細 |
3LDK LDK 13.9帖 1室/洋室 6.0帖 1室/洋室 5.0帖 1室/洋室 4.5帖 1室 |
専有面積 | 65.45㎡ |
| バルコニー面積 | 10.08㎡ | ルーフバルコニー面積/テラス面積/専用庭面積 | -/-/- |
| 価格 | 7,980万円 | ||
| 管理費 | 8,300円 | 駐車場/月額料金 | 空無/ 駐車場情報:敷地内 (屋内) 空き状況:無(空:0台) |
| 利回り | 想定3.72%/- | ||
| 修繕積立金 | 6,900円 | 修繕積立基金 | - |
| 土地権利 | 所有権 | 国土法届出要否 | 不要 |
| 用途地域 | 準工業 | 地勢 | 平坦 |
| 種別/構造 | 中古マンション/鉄筋コンクリート | 向き | 西 |
| 築年月(築年数) | 2020年 3月 (築6年) | ||
| 所在階/階建 | 2階/19階建 | 棟総戸数/販売戸数 | 107戸/- |
| 管理組合有無 | 有 | 管理形態 | 管理会社に全部委託 |
| 管理員の勤務形態 | 日勤 | 管理会社 | パナソニックホームズ・合人社コミュニティ㈱ |
| 取引態様 | 専任媒介 | 現況 | 空家 |
| 引渡し | 即時 | 建築確認番号 | - |
| 物件番号 | 99883499 | 取引条件の有効期限 | 2026年05月25日 |
| 設備条件 |
|
||
| 備考 | ☆オーナーチェンジ・表面利回り:3.72☆2020年竣工!家から136mのところには愛和クリニックがあります。開放感溢れる室内が魅力の、3LDKの物件はこちらです。駅徒歩10分の物件です。安心して過ごせるお住まいを、大阪市北区にある大阪環状線福島周辺で検討してみませんか。住まいに関する事なら、暮らしの相談室 中崎町店までご連絡下さい。お待ちしております。 | ||
| 条件(その他) | インターネット使用料金月:1,650円 ゆいぽたサービス一括:165円 エミットマンション使用料月:550円 | ||
| 取扱会社 |
|
||
※地図上に表示される物件の位置は付近住所に所在することを表すものであり、実際の物件所在地とは異なる場合がございます。















