メロディーハイムTEN-ROKU弐番館 4階
☆オーナーチェンジ・表面利回り:3.67% ☆「天神橋筋六丁目」駅徒歩3分の好立地!☆三方角住戸です!多くの方に好評の、3LDKの物件情報はこちらです。大阪市北区で新生活を始めるなら、地下鉄谷町線天神橋筋六丁目周辺で検討しましょう。当社までのご連絡は、info@oceans-p.co.jpからお問い合わせ頂けます。
ローンシミュレーションこの物件を購入した場合の、月々の支払い価格の一例です。借り入れを保証するものではございません。
- 返済期間
-
- 金利
-
- ボーナス時の増額(1回分)
-
- 借入金額:
-
- 頭金:
-

- 毎月の返済額:
(※元利均等方式 金利5.00%まで ※返済年数5~50年まで入力できます)
(※ボーナスは年2回で計算しています。1000万円まで入力できます)
(※物件購入時、その他諸費用が発生する場合がございます)
想定賃料・利回り・PER
- 想定賃料(1か月分)
-
- 利回り
-

- PER(収益力)
担当者のコメント 鎌倉仁興

- ☆オーナーチェンジ・表面利回り:3.67% ☆「天神橋筋六丁目」駅徒歩3分の好立地!☆三方角住戸です!銀行窓口での用事も楽にできる(りそな銀行 天六支店まで徒歩3分)。安心のオートロック設備で、女性にもおすすめできる物件です。高さと奥行のある押入は魅力がありなんでも収納できちゃいます。浴室乾燥機のあるお風呂場は洗濯物を干すときにも便利です。住まい探しをするなら大阪市北区でお求め下さい。利便性が高く、快適な暮らしができるでしょう。お問い合わせはinfo@oceans-p.co.jpにお待ちしております。
ポイント・特徴
物件概要
【中古マンション】 物件番号:98965494 情報更新日:2026年02月10日 次回更新予定日:2026年02月24日| 所在地 | 大阪府大阪市北区本庄東1丁目13-4 | ||
|---|---|---|---|
| 交通 | |||
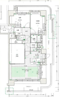
| 間取り/詳細 | 3LDK | 専有面積 | 68.42㎡ |
| バルコニー面積 | 25.00㎡ | ルーフバルコニー面積/テラス面積/専用庭面積 | -/-/- |
| 価格 | 5,880万円 | ||
| 管理費 | 10,040円 | 駐車場/月額料金 | 空有(5台)/- |
| 利回り | 表面3.67%/- | ||
| 修繕積立金 | 22,430円 | 修繕積立基金 | - |
| 土地権利 | 所有権 | 国土法届出要否 | 不要 |
| 用途地域 | 準工業/商業 | 地勢 | 平坦 |
| 種別/構造 | 中古マンション/鉄骨鉄筋コンクリート | 向き | - |
| 築年月(築年数) | 2000年 3月 (築25年) | ||
| 所在階/階建 | 4階/14階建 | 棟総戸数/販売戸数 | 65戸/- |
| 管理組合有無 | 有 | 管理形態 | 管理会社に全部委託 |
| 管理員の勤務形態 | 日勤 | 管理会社 | ケイエスコミュニティ |
| 取引態様 | 仲介 | 現況 | 賃貸中 |
| 引渡し | 相談 | 建築確認番号 | - |
| 物件番号 | 98965494 | 取引条件の有効期限 | 2026年02月24日 |
| 設備条件 |
|
||
| 備考 | ☆オーナーチェンジ・表面利回り:3.67% ☆「天神橋筋六丁目」駅徒歩3分の好立地!☆三方角住戸です!歩いて274mの場所に、CoDeli天神橋筋六丁目駅前店があります。家から416mの場所に大阪本庄郵便局があります。大阪市北区周辺での住まい選びなら、地下鉄谷町線天神橋筋六丁目近辺がベストでございます。当社までは0648020077またはinfo@oceans-p.co.jpまでご連絡ください。 | ||
| 取扱会社 |
|
||
※地図上に表示される物件の位置は付近住所に所在することを表すものであり、実際の物件所在地とは異なる場合がございます。















